logo d

+971 52 632 84 67

Все
От до
Все
От до
Готовые к заселению
Строящаяся недвижимость

Ajman Creek Tower by GJ Properties

О проекте

Стартовая цена:

216 284 $
Конвертировать валюту:

Минимальная площадь:

331 м²

Количество спален:

3

Дата сдачи:

Q4/2027

Ajman Creek Tower  by GJ Properties — современный жилой комплекс у воды, расположенный в престижном районе Al Rashidiya  в Аджмане. Проект является частью масштабной застройки Ajman Creek Towers и предлагает комфортную городскую жизнь с панорамными видами на канал и развитой инфраструктурой.

Снимок экрана 2026 01 12 102545
Снимок экрана 2026 01 12 102646

Ajman Creek Tower  предлагает широкий выбор удобств, включая бассейны для взрослых и детей, современный фитнес-центр, зоны отдыха, детские игровые площадки, зелёные прогулочные пространства и розничные магазины на территории. Комплекс спроектирован с учётом потребностей семей, молодых специалистов и инвесторов.

Ajman Creek Tower  by GJ Properties — это удачное сочетание доступной стоимости, прибрежного образа жизни и инвестиционной привлекательности, делающее проект отличным выбором как для собственного проживания, так и для получения стабильного дохода от аренды.

Снимок экрана 2026 01 12 102609
Комментарии отсутствуют
Добавить комментарий
Location
Facilities
Value for money
Cleanliness
     
       

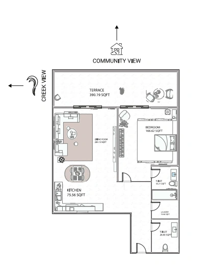
Планировки

Планировки в Ajman Creek Tower  разработаны с акцентом на комфорт, функциональность и оптимальное использование пространства. Проект предлагает апартаменты с 1 и 2 спальнями, каждая из которых имеет продуманное зонирование, большие панорамные окна и светлые жилые зоны.
Рациональные решения планировок обеспечивают удобство в повседневной жизни и создают ощущение простора. Жильё подходит как для собственного проживания, так и для инвестиций, поскольку форматы квартир пользуются стабильным спросом на рынке аренды и перепродажи.

О районе

Снимок экрана 2026 01 12 102233

Al Rashidiya

Ajman Creek Tower  расположен в районе Al Rashidiya  в Аджмане, рядом с каналом Ajman Creek. Район отличается спокойной атмосферой, развитой инфраструктурой и удобным доступом к магазинам, школам, медицинским учреждениям и набережной. Хорошая транспортная доступность позволяет быстро добираться до ключевых районов Аджмана, а также до Шарджи и Дубая, что делает локацию удобной для жизни и инвестиций.

О застройщике

Снимок экрана 2026 01 12 102148

GJ Properties

GJ Properties является ведущим застройщиком в Ajman, основан в 2013 году. За последние десять лет компания реализовала 15 высококачественных проектов, укрепив свою репутацию как премиум разработчика роскошных жилых и коммерческих недвижимостей. Среди их знаковых проектов - The Biltmore Residences Sufouh, Gulf Tower и Rose Tower, каждый из которых символизирует инновации и устойчивость. В центре миссии GJ Properties - создание жилых пространств, предлагающих выдающееся качество жизни. 

Месторасположение на карте

Узнать больше

 

Мы в социальных сетях Rutube WhatsApp * Instagram * Youtube

*Компания "Meta" (включая ее продукты) признана экстремистской организацией в России от 28.03.2022.